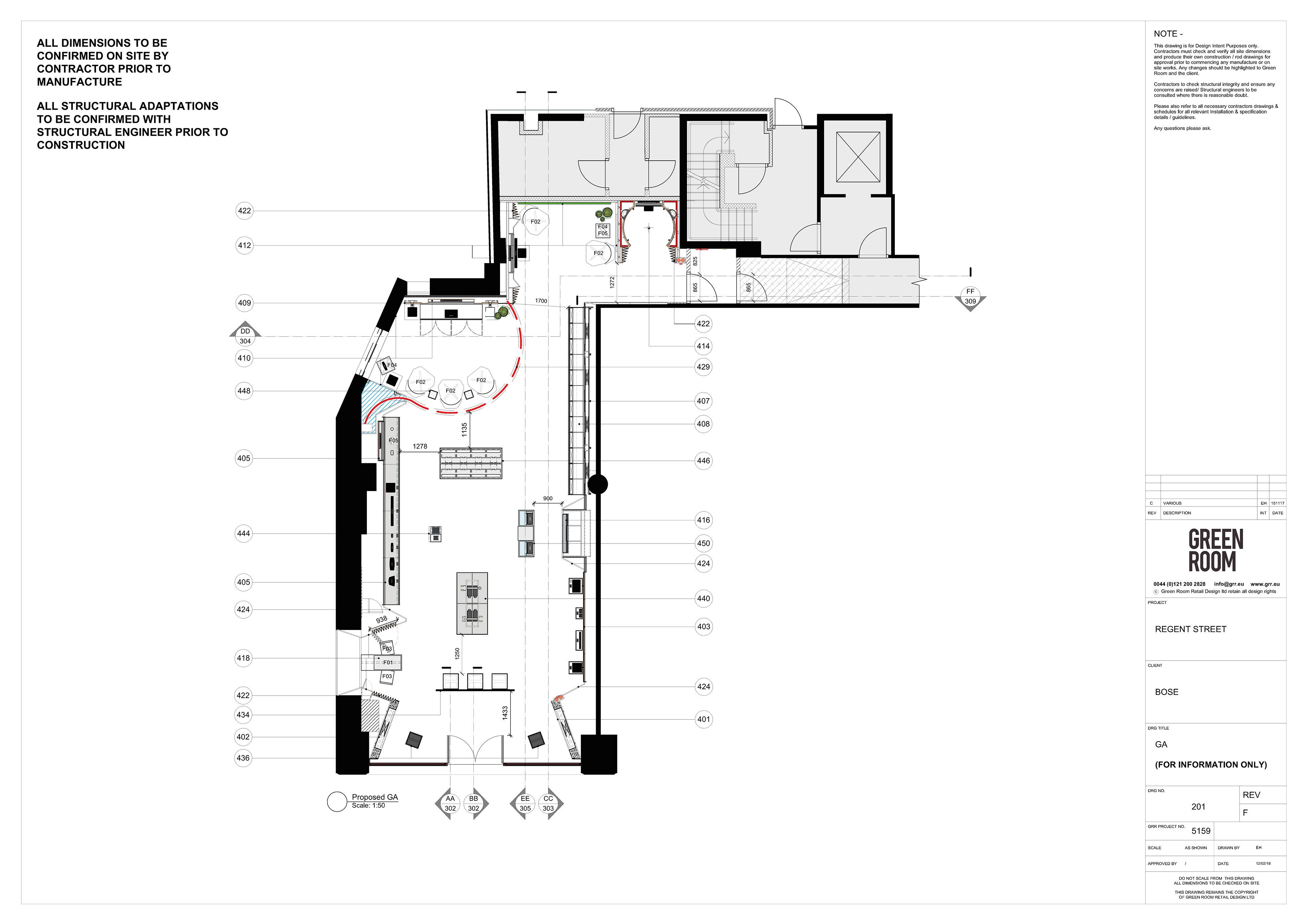
A new flagship retail store for BOSE on Regent Street, London. The customer experience concept focuses on connecting with customers through emotive product trial experiences.